Green Roof Evaluation: A Holistic ‘Long Life, Loose Fit, Low Energy’ Approach
Craig Langston
Faculty of Society and Design, Bond University, Australia
Abstract
Green roofs have potential to improve the social and environmental performance of detached housing in Australia, yet often they are overlooked due to prohibitive capital cost and a range of other perceptions that are difficult to quantify. A classic evaluation problem is invoked that must balance short and long term benefits. Using two distinct designs of the same floor area, green roof and traditional housing prototypes are analysed to determine the relative ‘breakeven’ point when long-term benefits become feasible. It is discovered that green roofs are unlikely to be viable in their own right, but when coupled with an overall design strategy of long life (durability), loose fit (adaptability) and low energy (sustainability) they can deliver least cost (affordability) over time as well as unlock valuable social and environmental rewards. This outcome can be realised within 25% of a home’s expected design life of at least one hundred years. The results demonstrate that residential green roofs, when integrated as part of a holistic approach, can be both individually and collectively justified on key economic, social and environmental criteria, and are therefore able to claim a valuable contribution towards wider sustainable development goals.
Keywords: Intensive green roof, evaluation, sustainable prosperity, housing, Australia.
Paper type: Viewpoint
Copyright: Construction Economics and Building 2015. © 2015 Craig Langston. This is an Open Access article distributed under the terms of the Creative Commons Attribution 4.0 Unported (CC BY 4.0) License (https://creativecommons.org/licenses/by/4.0/), allowing third parties to copy and redistribute the material in any medium or format and to remix, transform, and build upon the material for any purpose, even commercially, provided the original work is properly cited and states its license.
Citation: Langston, G., 2015. Green Roof Evaluation: A holistic ‘long life, loose fit, low energy’ approach, Construction Economics and Building, 15(4), 76-94. DOI: http://dx.doi.org/10.5130/AJCEB.v15i4.4617
Corresponding author: Craig Langston; Email - clangsto@bond.edu.au
Publisher: University of Technology Sydney (UTS) ePress
Introduction
Gardner (2014) notes that half of Australia’s infrastructure required for 2050 is yet to be constructed, so there appears a lot of opportunity for built environment professionals to contribute to a more resilient nation in the years ahead. Sustainable development can help to mitigate the impacts of climate change, but only if it takes account of the potential economic, social and environmental benefits over the design life of the project. In particular, good architecture should embrace a philosophy of long life, loose fit and low energy (Gordon, 1972) to ensure that new infrastructure is not a burden on society but rather a strategy to improve future living standards in the context of broader sustainability goals.
Green (or ‘living’) roofs represent an opportunity to explore this strategy and make a positive contribution to the quality of our urban environment (Werthmann, 2007; Jafal, Ouldboukhitine and Belarbi, 2012). The Green Growing Guide (Department of Environment and Primary Industries, 2014) is a useful summary of background information on this topic. Green roofs comprise vegetation added to the roof element of buildings, and are classified as either extensive or intensive systems (Snodgrass, 2010). The key difference between them is plant type, access and soil depth or weight. Extensive green roofs have moss or grass vegetation, maintenance only access and a shallow depth for the growing medium (typically less weight than 150kg/m2). Intensive green roofs have a wider variety of plants, are designed as trafficable public spaces, and have a soil depth of around 250mm or more. A true green roof covers at least 30% of a building’s overall roof area (City of Sydney, 2014).
Residential green roofs are not common in Australia. This may be a function of the obvious higher construction cost, the difficulty in relating it to associated social and environmental benefits, or even normal industry practice and expectations. The aim in this paper is to develop and apply an evaluation approach that integrates economic, social and environmental performance criteria to compare a long life, loose fit, low energy strategy (incorporating an intensive green roof) against a traditional strategy for domestic housing. To fulfil this objective, a case study methodology is applied. A literature review of green roof performance is followed by an explanation of the method, case study findings, reflective discussion and concluding recommendations.
Literature Review
Intensive green roofs have a number of advantages over other forms of ‘cool’ roof systems, which generally offer improved thermal performance and lower energy implications for the buildings they serve. These comprise additional amenity and relaxation space, capacity for food production, aesthetic appearance, significant thermal mass, noise reduction, better bushfire and severe storm defence, and enhanced control over stormwater run-off (Cantor, 2008; Hopkins and Goodwin, 2011; Roehr and Fassman-Beck, 2015). Possible disadvantages include extra structural load, risk of membrane failure, and high construction cost. In commercial settings, the cost of landscaping maintenance can also be of concern, yet in residential settings this may be a positive for occupants who take pleasure from gardening and land care.
Choi (2008) examined the life-costs for a new three bedroom detached residence located in Brisbane compared with a green roof solution. The proposed house was assumed to have a land size of 925m2 and a floor area of 240m2. She achieved this by investigating the costs of extra structural implications, green roof construction, associated maintenance requirements, plus benefits of stormwater impacts, energy savings and carbon offsets over a design life of 50 years. Two different green roof options were analysed: an extensive green roof with 150mm of soil depth, and an intensive green roof with 900mm of soil depth. Both were compared with a conventional non-green roof.
Although the research found that green roofs were more expensive than a conventional roof system, by a factor of two for the extensive roof and a factor of three for the intensive roof, the process of calculation was deeply flawed. The motivation for the study was an exercise in engineering design and the use of a timber supporting structure was impractical, especially for the intensive roof. Access was intended for maintenance only. Benefits were identified as difficult to convert into a dollar value. Increased biodiversity, aesthetic benefits, food production and decreased noise pollution could not be taken into account at all. Choi (2008) recommended that further research be undertaken to incorporate intangible benefits into the analysis, concluding that a complete account was fundamental to the procreation of green roofs in Brisbane.
This study highlighted the need for a more comprehensive evaluation model. While economic factors are fundamental, the attempt to convert social and environmental benefits into monetary terms and discount them as if they were normal cash flow transactions is problematic (Langston, 2005). A better approach might involve multiple criteria, objectively assessed using appropriate units of measurement, and combined together as an overall performance ratio or index.
From an environmental perspective, green roofs can improve air quality by removing pollutants. In a study of the City of Chicago, Yang, Yu and Gong (2008) found that a total of 1,675kg of air pollutants was removed by 19.8ha of green roofs annually (i.e. 85kg/ha/yr). Pollutants are collected by foliage and washed into the soil layer, where they are absorbed, or ultimately carried away by stormwater run-off. Green roofs have a modest impact on urban air quality, proportional to the extent of foliage and soil depth.
Fifth Creek Studio (2012) undertook field tests of 125mm (125kg/m2) extensive and 300mm (300kg/m2) intensive green roof systems laid in metal trays on the existing roof surface of a multi-storey office building in Adelaide. They found the potential recycling of outflow water from either green roof was suitable for reuse as urban landscape irrigation and for non-potable purposes such as toilet flushing in buildings, but not as drinking water due to soil leaching. They also found that the insulation value of either thickness was sufficient to reduce summer heat flow in Adelaide’s hot dry climate, albeit based on a dry substrate condition. When moisture was added, insulation values fell and temperatures within the profile rose, because water is a good thermal conductor. The deeper the profile the larger the insulation value and the longer the time delay for peak temperatures. The results indicated that adding and subtracting water from the substrate could be used to control heat flow.
Wark (2011) argued two fundamental principles of green roofs. First, healthy vegetation uses a combination of nature’s heat transfer mechanisms (i.e. conduction, evaporation, reflection, convection and thermal mass) to remain within a few degrees of the ambient outside air temperature. This can reduce what is called ‘urban heat island effect’. Second, the greater the thermal mass, the more it dampens diurnal swings in outdoor temperature. This can help manage heat gain and loss through un-insulated green roofs, but only for a limited range of geographic locations and climates.
The benefits of delayed thermal conductance in some climates with a marked diurnal range are of no advantage in other climates where temperature oscillation above and below expected indoor comfort is not significant (BlueScope Steel, 2010). In residential settings in Australia, the Building Code of Australia requires that roof elements meet minimum insulation values. Previous research on the thermal conductance properties of green roof systems is therefore not normally applicable to Australian residential buildings. In fact, as a form of insulation, green roof systems are inferior to the simple addition of proprietary products made from fibreglass, glass wool or polystyrene.
Green roofs are unlikely to represent a viable outcome compared to conventional roof systems when assessed in isolation. That is a clear finding in this study. However, an integrated design solution that optimises economic, social and environmental factors can embrace the advantages of green roofs while dissipating the negatives of upfront cost. In regard to financial issues, the higher construction cost of green roofs must be offset by lower operating costs elsewhere. The same applies for the building’s initial and recurrent carbon footprint. Extra usable space from an intensive green roof can add further value and reduce the overall resource ‘cost’ per square metre. This paper therefore develops a framework to evaluate an integrated long life, loose fit, low energy strategy capable of delivering a favourable outcome for residential green roof applications.
Method
The selected research method is measurement via detailed case study. Case study is an ideal methodology when a holistic in-depth investigation is needed (Feagin, Orum and Sjoberg, 1991). It has been used in varied investigations, particularly in sociological studies but increasingly in construction. The procedures are robust, and when followed the approach is as well developed and tested as any in the scientific field. Whether the study is experimental or quasi-experimental, the data collection and analysis methods are known to hide some details. Case studies, on the other hand, are designed to bring out the details from the viewpoint of the participants by using multiple sources of data (Tellis, 1997).

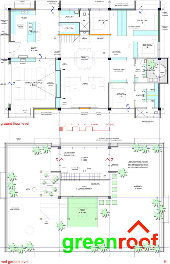
Figure 1: Green roof project floor plans

Figure 2: Green roof project elevations

Figure 3: Green roof project edge details

Figure 4: Traditional brick veneer project
Two case studies are employed in this research. Both relate to residential houses of the same area on the same 35 x 20m (700m2) western frontage site; one optimised for low operating costs including an intensive green roof, the other optimised for low capital costs that reflects traditional new construction on the Gold Coast in Queensland, Australia. The Gross Floor Area (GFA) at ground level for each house is limited to 50% of the site area. Build time (from site possession to client handover) is predicted to be 15 weeks in both cases.
Capital cost data are based on composite items of building work measured and priced in the form of an elemental cost plan. An independent quantity surveyor experienced with local conditions is engaged to validate pricing. The supply of loose furniture and equipment and the optional inclusion of an in-ground swimming pool apply equally in both case studies and hence are ignored from the comparison. Embodied carbon footprints are computed from the cost plan using energy intensities from an Australian specific input-output-based hybrid model (Treloar, 1998; Crawford, 2004) to which an average emission factor of 65.07kgCO2e/GJ for Australia’s current energy generation mix is applied (see Appendix).
Operating cost data are estimated from reasonable cycles for future energy, maintenance and replacement work, expressed as discounted value. Household cleaning and gardening activities are specifically excluded from the calculations (i.e. these tasks are assumed to be undertaken by the owners). Billing data for sewerage, water, gas and electricity usage are estimated and benchmarked against actual projects. Recurrent carbon includes the supply of primary energy in the form of natural gas (51.33kgCO2e/GJ) and grid electricity (0.81kgCO2e/kWh) in Queensland (Department of the Environment, 2014) plus further embodied energy in recurrent repair and replacement activities (cycles derived from personal experience and manufacturer warranties and conditions).

Figure 5: Green roof project cost and energy summaries
The green roof project is calculated from a prototype design for an intensive green roof over a largely single storey residence of 400m2. The additional usable roof (Unenclosed Uncovered Area) created is 300m2. Figures 1 and 2 describe the proposed design plans and elevations respectively, while Figure 3 describes the intended roof, wall and floor edge details including thermal performance characteristics. This proposal is compared to a traditional two-storey brick veneer project of the same enclosed area, as illustrated in Figure 4. In both cases, the designs comply with the Building Code of Australia for Class 1 & 10 (Residential Structures) in Zone 2 (Temperate Climate: Gold Coast, Australia).
The green roof project requires a more substantial structure to carry the added weight of soil and retained water and to form a stable surface for the waterproof membrane. The area of green roof amounts to approximately 85% of the total roof area. It should be densely planted as an evergreen non-invasive roof garden while still permitting full access and amenity for building occupants. Further, this case includes compatible design choices that reflect low maintenance low technology materials and systems to improve longevity; multi-purpose space, non-loadbearing walls, movable bedroom partitioning systems and open planning to permit future functional change; natural light and ventilation via a central atrium with a 5kW photovoltaic array on its north-facing roof capable of providing 100% of the electricity needs of the occupants over the course of a year; plus rainwater collection for use as general irrigation. Dimmable LED lighting is used throughout.
In contrast, the traditional project reflects what is commonly delivered in the local market, and aims to keep the initial construction price low through largely timber-framed loadbearing superstructure and metal sheet roofing, maximised speed of assembly through use of off-site prefabricated wall frames, floor beams and roof trusses, and more energy-intensive technologies such as ducted reverse cycle air-conditioning, clothes dryer, specialist media room, and multiple large plasma TVs. Generally internal walls and ceilings are painted plasterboard and external walls are painted cement render. While solar hot water is included, gas supply is not standard and the design generally has a high reliance on external power and water.
Figure 5 summarises the cost and energy profiles for the green roof project over its 100-year design life. Gross Project Cost (AUD$ as at June 2015) and Gross Project Energy (GJ) reflect the expected capital (embodied) or operating (recurrent) resources and form the basis for comparison with the traditional project design. Energy (GJ) is later converted to carbon footprint (tCO2e) to model overall environmental impact.
Analytical Framework
Table 1 summarises previous green roof evaluation research using a combination of economic, social and environmental criteria. Care was taken not to include studies carried out to determine only singular aspects like energy performance, suitable plant selection, temperature reduction, etc.
It is clear that not many studies set out to evaluate the performance of all three parameters of sustainability. The research by Porsche & Köhler (2003) is one of the earliest studies to establish the green roof’s economic costs and more interestingly comparing it in three different continents. The study indicated that it is difficult to calculate ecological benefits. The vast majority of the studies primarily dealt with the economic benefits in isolation or in combination with the environmental outcomes (Bond, Morrison-Saunders and Pope, 2012).
Even though each of the individual research studies contributed substantially to the advancement and establishment of green roof design, there is still scope for developing a single framework that is capable of assessing all relevant economic, social and environmental criteria in units that are appropriate to each. The remainder of this paper demonstrates such a framework by applying it to a comparison between the green roof project and the traditional project.
| Method used | Type of project | Location | Result | Framework assessed |
| Life-cycle cost-benefit analysis Source: Carter and Keeler (2008) |
Cost benefits analysis of extensive green roofs on water shed, over its life-cycle | Atlanta, USA | Net present value (NPV) of green roofs 10% to 14% higher than conventional roofs, after balancing cost of environmental benefits | Economic |
| Economic-input output life-cycle assessment Source: Blackhurst, Hendrickson and Matthews (2010) |
Studying cost effectiveness of green roofs in typical urban mixed-use neighbourhoods | Unspecified | Green roofs are competitive in multifamily and commercial buildings when social benefits are included | Economic and social |
| Fuzzy analytical hierarchy process Source: Dabbaghian et al. (2014) |
Comparing extensive and intensive green roofs over two education buildings | Okanagan and Vancouver, Canada | Extensive green roof is more appropriate to deliver long-term sustainability performance criteria than intensive roofs | Economic, social and environmental |
| Life cycle assessment (Cradle to gate) Source: Bachawati et al. (2015) |
Comparing life cycle performance of traditional gravel ballasted roof and extensive green roof | Lebanon | Environmental impacts of green roofs lesser than gravel ballasted roof | Environmental |
| Social cost-benefit analysis Source: Bianchini and Hewage (2012b) |
Probabilistic social cost-benefit analysis for green roofs: a lifecycle approach | British Colombia, Canada | Social cost-benefit analysis study was undertaken on extensive, intensive and waste based green roofs; analysis found green roofs as a short-term, low-risk investment – social costs and benefits increase the value of green roofs | Social |
| Life cycle analysis using SimaPro Source: Bianchini and Hewage (2012a) |
If materials that are currently used on green roofs are green enough | Canada | Though green roofs have several environmental benefits, the use of polymer in green roofs has high negative environmental impacts | Environmental |
| Net present value analysis (NPV) Source: Clark, Adriaens and Talbot (2008) |
Green roof valuation: a probabilistic economic analysis of environmental benefits | Michigan, USA | NPV of green roofs lower than NPV of conventional roofs, however energy, stormwater and air pollution mitigation calculations proved green roofs are highly beneficial | Economic and environmental |
| Cost-benefit analysis Source: Claus and Rousseau (2012) |
Public versus private incentives to invest in green roofs | Flanders, Belgium | Subsidies for green roofs are required to encourage private investors to develop green roofs | Economic |
| Life cycle cost analysis Source: Porsche and Köhler (2003) |
Comparison of green roofs cost in Germany, Brazil and USA | Multiple locations | Green roofs are more economical in long term than non-green roofs | Economic |
| Benefit cost- ratio Source: Peng and Jim (2015) |
Economic evaluation of the environmental benefits of green roofs | Hong Kong | Green roofs can address climate change challenges with extensive green roofs being economically attractive to intensive types, offering life cycle higher benefit-cost ratio and faster payback. | Economic and environmental |
Case Study Findings
Performance is modelled over a building life of 25, 50 and 100 years using indicative economic, social and environmental criteria. Each criterion is analysed separately, quantified, and then combined together as a single overall rating out of 100.
Economic performance
Known as the ‘profit’ criterion, economic performance is computed as time-adjusted capital and operating costs over the building life using a discounted cash flow approach. The real discount rate chosen for the comparison is 3%, which is a probable long-run reflection of the difference between investment return and inflation rates in Australia.
A graph showing the results of a cumulative discounted cash flow for each case is provided in Figure 6. It is seen that the green roof project has a higher capital Gross Project Cost but lower operating costs than the traditional project, and the point after which the green roof project represents better value is about 30 years. Given a notional design life for either case of 100 years, an economic benefit is available to the first or subsequent owner, and therefore to society as a whole.

Figure 6: Economic performance assessment
Capital cost for the green roof project is $1,204,376. The traditional project has a 54% advantage. After 25 years the comparative operating cost is modelled as $329,965 for the green roof project and $665,687 for the traditional project, which grows to $556,066 and $1,141,121 respectively after 50 years and $741,659 and $1,577,318 respectively after 100 years. Residual value may be treated as a negative cost, based on market value. In this study it is assumed to have the same ratio to construction cost after inflation and depreciation, so can be ignored from the comparison.
Economic performance is calculated as ‘base divided by discounted life-cost’ at a particular stage of the project’s life cycle, expressed as a percentage. The base is the minimum realistic cost for a project of this type and size at Year 0. A survey of large project home builders on the Gold Coast suggests that this value is approximately $400,000 for June 2015 once basic site works and minimal inclusions have been added (i.e. $1,000/m2). Therefore, as an example, the economic performance (i.e. profit criterion) of the green roof project at Year 25 is 26.07%, computed as $400,000 divided by ($1,204,376 + $329,965) and multiplied by 100.
Social performance
Known as the ‘people’ criterion, social performance is computed using a weighted matrix of non-financial characteristics that contribute to social quality of life. Characteristics are weighted using consensus according to relative importance (using a 1-10 scale, where 10 is high importance) and then assessed for each case study (using a 0-5 scale, where 5 is high compliance).
The comparative weighted matrix for each case is provided in Figure 7. Overall score is computed as the sum of the multiplication of performance level and relative weighting for each performance criterion. To be fair, the same performance criteria are applied to both cases. The green roof project has the highest weighted performance of 378 out of a maximum possible score of 600. This compares to 341 out of 600 for the traditional project. Therefore social performance (i.e. people criterion) of the green roof project is 63.00% (computed as 378 divided by 600 and multiplied by 100), while the traditional project is 56.83%. These scores are assumed to be constant over time.

Figure 7: Social performance assessment
The key criteria relate to comfort, utility, aesthetics and externalities. Issues of durability, ease of construction, maintenance liability, market value and other matters best measured in monetary terms are part of economic performance and hence not included here (this would otherwise introduce double counting). Embodied and recurrent carbon demand, measured in tCO2e, is similarly dealt with as environmental performance. All other matters, sometimes described as intangible criteria, are intended to be part of social performance.
Environmental performance
Known as the ‘planet’ criterion, environmental performance is computed in terms of embodied and recurrent carbon footprint at various stages of the project’s life cycle. Waste management activities during construction and ongoing household lifestyle behaviours are considered equal to both cases, and ignored, while other community impacts have been accounted for previously as intangible externalities.
The proportion of renewable to total energy in Australia is growing and is expected to reach 20% in 2020. So the average emission factor for embodied energy gradually decreases, and should fall to about 60kgCO2e/GJ by then. To model this trend, future CO2e needs to be ‘discounted’ at a rate of 1.5% per annum. At this rate, emission conversion will equal about 50kgCO2e/GJ in 2033.
The comparative carbon modelling outcomes for each case are provided in Figure 8. Carbon footprint (tCO2e) is a measure of the amount of initial and operational resources that demand fossil fuels, including embodied carbon in future component replacement, and hence impact on the environment. Total carbon footprint for each case study accumulates over time at different rates, with equivalence occurring at about the 30-year point. If a project uses more renewable resources or recycled content with less demand for fossil fuels, then its carbon footprint is lower.

Figure 8: Environmental performance assessment
Embodied carbon for the green roof project is 1,093tCO2e. The traditional project has a 111% advantage. After 25 years the comparative recurrent carbon is modelled as 287tCO2e for the green roof project and 785tCO2e for the traditional project, which grows to 585tCO2e and 1,481tCO2e respectively after 50 years and 970tCO2e and 2,583tCO2e respectively after 100 years. High initial embodied carbon is not necessarily a problem provided it is harnessed to extend the frequency of future replacement and/or has other recycling or reprocessing potential after its original deployment has concluded.
Similar to the economic criterion, environmental performance is calculated as ‘base divided by carbon footprint’ at a particular stage of the project’s life cycle, expressed as a percentage. The base is the minimum realistic carbon footprint for a project of this type and size at Year 0. This has been estimated at approximately 250tCO2e (i.e. 0.625tCO2e/m2). Therefore, as an example, the environmental performance (i.e. planet criterion) of the green roof project at Year 25 is 18.12%, computed as 250tCO2e divided by (1,093tCO2e + 287tCO2e) and multiplied by 100.
Overall performance
Beech (2013) described the 4Ps of sustainable prosperity: profit, people, planet and progress. He referred to these four criteria as a quadruple bottom line (QBL) philosophy. Progress was defined as adaptive innovation, but can alternatively be argued as the synergistic influence of the other three criteria. In this study, the following formula for overall QBL performance is used:

Profit, people and planet are considered in this study as equally important, and measured as an index out of 100. The higher the QBL index, the better the overall performance at a given point in the project’s life cycle, and the more progressive the project is judged. Table 2 describes the QBL indices that have been computed for the green roof project and the traditional project.
For example, the QBL index for the green roof project at Year 25 is computed as (26.07 + 63.00 + 18.12) divided by 3, or 35.73. This value suggests the green roof project is 3.47% better overall than the traditional project. It is 23.67% worse off in Year 0. The point of equivalence between both cases is nearly 25 years.
Intensive green roof construction adds additional capital cost. Nevertheless, the green roof project is shown as a superior choice to the traditional project for the most part of their 100-year design life, so it is reasonable to conclude that considerable societal advantage can apply. The same advantage would not be expected for simpler (i.e. extensive) green roof designs, since longevity and performance contributions are lower and water-shedding ability is problematic.
Discussion
This paper is not an evaluation of the merits of a green roof, for if it was then it would have to be the only difference between case studies. But this research makes a strong case for the use of residential green roof construction in the context of a higher capital cost and lower operating cost profile. The latter is not dependant on an intensive green roof per se, but a number of decisions flow from this type of design, such as rigid concrete frame, non-loadbearing walls, higher use of thermal mass, and superior cyclone or bushfire defence. While the traditional project has a lower capital cost and higher operating cost profile, the green roof project takes the same time to build (i.e. 15 weeks) and provides rain protection for construction workers after just 7 weeks.
But one important aspect has so far been ignored. The green roof project creates an extra 300m2 (or 75%) extra usable floor area, which explains to some extent why it consumes more resources initially. If economic and environmental criteria were expressed as $/m2 and tCO2e/m2 respectively, an alternative outcome is obtained. This is summarised in Table 3.
Using these revised QBL indices, the green roof project is now 3.29% better off in Year 0, and improves over time to 46.87% after 100 years. The traditional project QBL indices are unaffected.
So why are there few examples of such projects on the Gold Coast? Why are they mainly used as podium roofs on high-rise developments and car parks? Up-front cost is a likely hurdle for many people looking to build their first home, and 25 years still seems a long time to wait for advantage considering the average cycle of buying and selling property is much less. But the creation of a useable roof is attractive and more practical than conventional upper floor balconies, with a garden area effectively equal in size to the original undeveloped site.
Both the green roof and traditional projects are more expensive than standardised ‘project homes’ of 400m2. The latter do not require recruitment of specialist designers or engineers since this cost is amortised across the volume of repeat sales. The buying power of large project home builders and their low margins also keeps costs down. Most importantly, delivered quality is basic (where upgrade variations are not chosen) and the overall design life is reduced, perhaps by as much as 25%. The upfront saving may be counterproductive in the long run.
This study demonstrates that green roof design, to be competitive, must be accompanied by other decisions that reflect a long life, loose fit, low energy philosophy. Often referred to in the context of ‘good architecture’, these principles are not always commonly practised. Material choice should be based on longevity and low maintenance, not capital cost. Floor layouts should be capable of change over time with minimal disruption and expense. Design should provide a comfortable living environment without the need for mechanical systems. When these matters are integrated into a green roof project, the result is lower operating costs that offset the higher initial spend.
Much of the literature from overseas on green roof design includes the benefit of thermal mass in the soil that delays the transfer of heat into the building until the evening when outside temperatures fall. This feature suggests that green roofs are more applicable to single storey structures. The Building Code of Australia, however, requires a minimum thermal resistance (R-value) of 4.1 for the roof element, which means that insulation is required between the garden and the building interior. This inhibits the flow of stored heat into the building, becoming a potential disadvantage for colder environments that waste this heat by radiating it back into the night sky. Fortunately for the Gold Coast region, the addition of insulation on top of the concrete roof slab stops condensation forming on the soffit in summer when warm humid air enters the building. So for both reasons, polystyrene insulation above the roof membrane is necessary.
Are there disadvantages in the use of green roofs apart from the extra capital cost? The answer is generally ‘no’, provided the roof does not leak. So it is important to specify a high quality waterproof membrane system, to properly supervise its application, and to water test it prior to installing garden materials, which should not begin until 28 days after the concrete pour. Drainage must be well designed, but it is also wise to specify a 300mm thick slab so that it won’t allow ponding water to find its way through via capillary action if the membrane were to fail in the future. A waterproofing additive to a thinner concrete slab is an alternative strategy (similar cost but lower carbon footprint). It is likely that the membrane will last well over 100 years given that it is not exposed to direct sun, is protected from plant roots and inadvertent human damage, is laid direct to a properly prepared concrete slab (with no expansion joints in the slab itself), and is covered by polystyrene insulation to ensure it does not suffer daily thermal shock. Water entry to the building interior is a significant potential risk, yet quite controllable.
The use of thermal mass within the insulated envelope of the building, rather than external to it, increases the climatic stability of the interior space and helps maintain greater comfort levels for building occupants. Given other sensible passive design decisions, such as window shading, natural light and adjustable cross-ventilation, the use of thermal mass in locations such as the Gold Coast is justifiable. However, it is necessary to ensure that hard internal surfaces are offset with softer more absorbent materials to reduce sound reverberation and noise. The need for air-conditioning can be avoided, with its inherent problems of condensation and mould in ductwork when running intermittently, although it would be prudent to include one form of both heating and cooling in a defined area for relief on extreme weather days. Finally, integration of north-facing photovoltaic cells on the roof element and the use of natural gas rather than electricity for heating, cooking and hot water supply should enable the home to balance its annual power requirements via the grid feed-in tariff without sacrificing modern lifestyle needs. A standard 5kW system for a non-air conditioned home (or 7.5kW if a swimming pool is needed) should suffice for most households given the favourable local climate.
Conclusion
Green roof construction is a viable option for new Gold Coast homes in the context of a holistic ‘long life, loose fit, low energy’ approach. Given the extra amenity it creates for occupants, the green roof project arguably represents superior value at any point in time. To be popular, however, there would also need to be support from local project home builders who could reduce initial costs through their buying power and design standardisation. Such intervention could lower construction costs by as much as 20% without impacting on building longevity or the theoretical equivalence point between green roof and traditional projects.
Green roofs can mitigate the impacts of climate change and assist with:
- reducing the urban heat island effect of our cities
- absorbing carbon dioxide and improving neighbourhood air quality
- filtering stormwater run-off
- providing extra habitat and enhancing biodiversity
- insulating the roof element from external noise sources (e.g. aircraft flight paths)
- improving building defence against cyclone and/or bushfire dangers
- providing extra amenity through options for trafficable roof gardens and recreation or private relaxation space
Some of these potential benefits, although real, are often overstated in the literature. In particular, items 1-4 above require citywide action to be influential. Climate change mitigation requires worldwide action.
A new evaluation framework is proposed, where ‘profit’ is computed as time-adjusted capital and operating costs over the building life using a discounted cash flow approach, ‘people’ is computed using a weighted matrix of non-financial characteristics that contribute to social quality of life, and ‘planet’ is computed in terms of embodied and recurrent carbon footprint at various stages of the project’s life cycle. In each case performance is compared to a common benchmark, and overall performance (i.e. ‘progress’) is computed for any time horizon as a mean of the resulting ratios.
There is much to be gained from the widespread use of green roof construction in the residential housing market on the Gold Coast. It would be good to see a greater take-up of this type of design, particularly in new housing estates yet to be developed, to deliver more sustainable communities into the future at lower initial cost. Such may require deliberate advocacy from the Gold Coast City Council in partnership with project home builders. Consumer education may also be necessary.
References
Bachawati, M.E., Manneh, R., Dandres, T., Nassab, C., Zakhem, H.E. and Belarbi, R., 2015. Comparative life cycle assessment of traditional gravel ballasted roof and extensive green roof. [online] Available at: http://www.balamand.edu.lb/News/Documents/LCA-UNDP.pdf.
Beech, D., 2013. Quadruple bottom line for sustainable prosperity, Cambridge Leadership Development. [online] Available at: http://cambridgeleadershipdevelopment/quadruple-bottom-line-for-sustainable-prosperity/.
Bianchini, F. and Hewage, K., 2012a. How “green” are the green roofs? Lifecycle analysis of green roof materials. Building and Environment, 48, pp.57-65 doi: http://dx.doi.org/10.1016/j.buildenv.2011.08.019
Bianchini, F. and Hewage, K., 2012b. Probabilistic social cost-benefit analysis for green roofs: a lifecycle approach. Building and Environment, 58, pp.152-62 doi: http://dx.doi.org/10.1016/j.buildenv.2012.07.005
Blackhurst, M., Hendrickson, C. and Matthews, S., 2010. Cost-effectiveness of green roofs. Journal of Architectural Engineering, 16(4), pp.136-43 doi: http://dx.doi.org/10.1061/(ASCE)AE.1943-5568.0000022
BlueScope Steel, 2010. Sustainability: sustainable building solutions - thermal mass (Technical Bulletin No. 7). [pdf] BlueScope Steel. [online] Available at: http://www.bluescopesteel.com.au/files/dmfile/BSLSustainabilitySTB7ThermalMassv1220609.pdf.
Bond, A., Morrison-Saunders, A. and Pope, J., 2012. Sustainability assessment: the state of the art. Impact Assessment and Project Appraisal, 30(1), pp.53-62 doi: http://dx.doi.org/10.1080/14615517.2012.661974
Cantor, S.L., 2008. Green roofs in sustainable landscape design. New York: W.W. Norton & Co.
Carter, T. and Keeler, A., 2008. Life-cycle cost-benefit analysis of extensive vegetated roof systems. Journal of Environmental Management, 87(3), pp.350-63 doi: http://dx.doi.org/10.1016/j.jenvman.2007.01.024
Choi, M., 2008. Comparative life-cycle costing analysis of green roofs in Brisbane. Honours. University of Queensland.
City of Sydney, 2014. Green roofs and walls policy. Sydney 2030: Green, Global, Connected (Policy #2014/126384). [online] Available at: http://www.cityofsydney.nsw.gov.au/.
Clark, C., Adriaens, P. and Talbot, F.B., 2008. Green roof valuation: a probabilistic economic analysis of environmental benefits. Environmental Science and Technology, 42(6), pp.2155-61 doi: http://dx.doi.org/10.1021/es0706652
Claus, K. and Rousseau, S., 2012. Public versus private incentives to invest in green roofs: a cost benefit analysis for Flanders. Urban Forestry and Urban Greening, 11(4), pp.417-25 doi: http://dx.doi.org/10.1016/j.ufug.2012.07.003
Crawford, R.H., 2004. Using input-output data in life cycle inventory analysis. Ph.D. Deakin University.
Dabbaghian, M., Hewage, K., Reza, B., Culver, K. and Sadiq, R., 2014. Sustainability performance assessment of green roof systems using fuzzy-analytical hierarchy process (FAHP). International Journal of Sustainable Building Technology and Urban Development, 5(4), pp.260-76 doi: http://dx.doi.org/10.1080/2093761X.2014.923794
Department of Environment and Primary Industries, 2014. Green growing guide: a guide to green roofs, walls and facades in Melbourne and Victoria, Australia. Victorian Government.
Department of the Environment, 2014. National Greenhouse Accounts Factors. Australian Government.
Feagin, J., Orum, A. and Sjoberg, G., eds. 1991. A case for case study. University of North Carolina Press.
Fifth Creek Studio, 2012. Green roof trials monitoring report. South Australian Government [online] Available at: https://www.sa.gov.au/.
Gardner, B., 2014. Of droughts and flooding rains. Australian and New Zealand Property Journal, 5(1), pp.33-8.
Gordon, A., 1972. Designing for survival: the President introduces his long life/loose fit/low energy study. Royal Institute of British Architects Journal, 79(9), pp.374-76.
Hopkins, G. and Goodwin, C., 2011. Living architecture: green roofs and walls. Collingwood, Victoria: CSIRO Publishing.
Jafal, I., Ouldboukhitine, S. and Belarbi, R., 2012. A comprehensive study of the impact of green roofs on building energy performance. Renewable Energy, 43, pp.157-64 doi: http://dx.doi.org/10.1016/j.renene.2011.12.004
Langston, C., 2005. Life-cost approach to building evaluation. Elsevier.
Peng, L.L.H. and Jim, C.Y., 2015. Economic evaluation of green-roof environmental benefits in the context of climate change: the case of Hong Kong. Urban Forestry and Urban Greening, 14, pp.554-61 doi: http://dx.doi.org/10.1016/j.ufug.2015.05.006
Porsche, U. and Köhler, M., 2003. Life cycle costs of green roofs: a comparison of Germany, USA and Brazil. Paper presented at the RIO 3 World Climate & Energy Event, Rio de Janeiro, Brazil.
Roehr, D. and Fassman-Beck, E., 2015. Living roofs in integrated urban water systems. London: Routledge.
Seligman, P., 2010. Australian sustainable energy: by the numbers. Melbourne Energy Institute, University of Melbourne. [online] Available at: http://www.energy.unimelb.edu.au.
Snodgrass, E.C., 2010. The green roof manual: a professional guide to design, installation, and maintenance. Portland, Oregon: Timber Press.
Tellis, W., 1997. Application of a case study. The Qualitative Report, 3(3), [online] Available at: http://www.nova.edu/ssss/QR/QR3-3/tellis2.html.
Treloar, G.J., 1998. A comprehensive embodied energy analysis framework. Ph.D. Deakin University.
Wark, C., 2011. Cooler than cool roofs: how heat doesn’t move through a green roof (Part 7) [online] Available at: http://www.greenroofs.com/archives/energy_editor.htm.
Werthmann, C., 2007. Green roofs: a case study. New York: Princeton Architectural Press.
Yang, J., Yu, Q. and Gong, P., 2008. Quantifying air pollution removal by green roofs in Chicago. Atmospheric Environment, 42(31), pp.7266-73 doi: http://dx.doi.org/10.1016/j.atmosenv.2008.07.003
Appendix
| Fuel Types | End-use kwh/day/person | kgCO2e/kWh (thermal) | kgCO2e/kWh (electric) | tCO2e/person/year | Fuel Mix (A) |
| Coal electricity generation | 20.9 | 1.10 | 8.4 | 35.92% | |
| Metallurgical coal | 16.0 | 0.30 | 1.8 | 7.50% | |
| Gas electricity generation | 5.5 | 0.75 | 1.5 | 6.44% | |
| Gas heating | 30.0 | 0.19 | 2.1 | 8.90% | |
| Oil | 70.4 | 0.25 | 6.4 | 27.50% | |
| Renewables* [target=20% by 2020) | ind. | 0.00 | 0.00 | 0.0 | 13.74% |
| Total: | 142.8 | 20.2 | 100.00% | ||
| * www.cleanenergycouncil.org.au/cleanenergyaustralia Source: adapted from Seligman (2010) |
|||||
| Fuel Types | Main Greenhouse Gases | Emission Factor | Fuel Mix | ||
| CO2 | CH4 | N2O | kgCO2e/GJ | (A) x (B) | |
| Bituminous coal | 88.20 | 0.03 | 0.20 | 88.43 | |
| Sub-bituminous coal | 88.20 | 0.03 | 0.20 | 88.43 | |
| Anthracite | 88.20 | 0.03 | 0.20 | 88.43 | |
| Brown coal | 92.70 | 0.01 | 0.40 | 93.11 | |
| Coal electricity generation | average (B): | 89.60 | 32.19 | ||
| Coking coal | 90.00 | 0.02 | 0.20 | 90.22 | |
| Coal briquettes | 93.30 | 0.06 | 0.30 | 93.66 | |
| Coal coke | 104.90 | 0.03 | 0.20 | 105.13 | |
| Coal tar | 81.00 | 0.02 | 0.20 | 81.22 | |
| Other solid fossil fuels | 93.30 | 0.06 | 0.30 | 93.66 | |
| Metallurgical coal | average (B): | 92.78 | 6.96 | ||
| Natural gas | 51.20 | 0.10 | 0.03 | 51.33 | |
| Compressed natural gas | 51.20 | 0.10 | 0.03 | S1.33 | |
| Unprocessed natural gas | 51.20 | 0.10 | 0.03 | 51.33 | |
| Coal seam methane | 51.10 | 0.20 | 0.03 | 51.33 | |
| Gas electricity generation | average (B): | 51.33 | 3.31 | ||
| Coal mine waste gas | 51.60 | 5.00 | 0.03 | 56.63 | |
| Ethane | 56.20 | 0.02 | 0.03 | 56.25 | |
| Coke oven gas | 36.80 | 0.03 | 0.06 | 36.89 | |
| Blast furnace gas | n/a | n/a | n/a | n/a | |
| Town gas | 59.90 | 0.03 | 0.03 | 59.96 | |
| Liquefied natural gas | 51.20 | 0.10 | 0.03 | 51.33 | |
| Other gaseous fossil fuels | 51.20 | 0.10 | 0.03 | 51.33 | |
| Gas heating | average (B): | 52.07 | 4.64 | ||
| Petroleum based oils | 27.90 | 0.00 | 0.00 | 27.90 | |
| Petroleum based greases | 27.90 | 0.00 | 0.00 | 27.90 | |
| Crude oil | 68.90 | 0.06 | 0.20 | 69.16 | |
| Other natural gas liquid; | 60.40 | 0.06 | 0.20 | 60.66 | |
| Gasoline (excluding aviation fuel) | 66.70 | O.20 | 0.20 | 67.10 | |
| Gasoline (aviation fuel) | 66.30 | 0.20 | 0.20 | 66.70 | |
| Kerosene (excluding aviation fuel) | 68.20 | 0.01 | 0.20 | 68.41 | |
| Kerosene (aviation fuel) | 68.90 | 0.01 | 0.20 | 69.11 | |
| Heating oil | 68.80 | 0.02 | 0.20 | 69.02 | |
| Diesel oil | 69.20 | 0.10 | 0.20 | 69.50 | |
| Fuel oil | 72.90 | 0.03 | 0.20 | 73.13 | |
| Liquefied hydrocarbons | 69.00 | 0.02 | 020 | 69.22 | |
| Solvents | 69.00 | 0.02 | 0.20 | 69.22 | |
| Liquid petroleum gas | 59.60 | 0.10 | 0.20 | 59.90 | |
| Naphtha | 69.00 | 0.00 | 0.02 | 69.02 | |
| Petroleum coke | 90.80 | 0.06 | 0.20 | 91.06 | |
| Refinery gases and liquids | 54.20 | 0.02 | 0.03 | 54.25 | |
| Refinery coke | 90.80 | 0.06 | 0.20 | 91.06 | |
| Other petroleum based products | 69.00 | 0.02 | 0.20 | 69.22 | |
| Oil | average (B): | 65.34 | 17.97 | ||
| Emission factor (Australia) for embodied energy materials extraction, manufacture & transport (kgCO2e/GJ): | 65.07 | ||||
| Source: adpated from Department of the Environment (2014) | |||||